Overslaan en naar de inhoud gaan

Stedenbouwkundige aan het woord

‘Toelichting op het stedenbouwkundig plan voor Horsterhoeve in Ermelo’

Het landschap rond Ermelo is heel bijzonder. Toen ons gevraagd werd om na te denken over de transformatie van camping de Horsterhoeve naar een nieuwe woonwijk, zijn we allereerst begonnen met een uitgebreide studie naar het landschap en de geschiedenis ervan.

Ermelo en zijn buurtschappen zijn ontstaan op de randen en uitlopers van het Veluwemassief. Het bijzondere aan deze uitlopers, ook wel dekzandruggen genoemd, is dat deze tot in voormalige Zuiderzee reikten. De Veluwe en de zee lagen hier pal naast elkaar! Tussen de hoger gelegen dekzandruggen

liggen lagere en nattere gebieden. Verschillende beekjes voeren daar het water af richting het Veluwemeer. De nabijheid van deze verschillende landschapstypen maakt dat het landschap rond Ermelo gevarieerd en aantrekkelijk is. 

Op de dekzandruggen ontstonden verschillende buurtschappen. Horlo is daar één van. Wij zagen dat het huidige buurtschap een heel aantrekkelijke woonomgeving is maar dat het ook een losse verzameling is van allerlei functies en bewoningsvormen. De transformatie van het recreatiepark zagen we dan ook als een kans om Horlo een hart en samenhang te geven. 

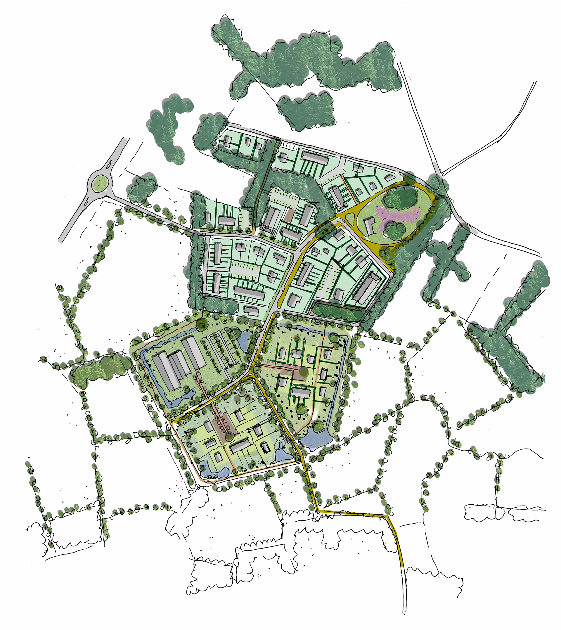
We hebben een meent ontworpen, op de plek van de voormalige hoofdingang van het recreatiepark. Een meent is van oudsher een naam voor gemeenschappe­lijke gronden. Daar, op de kruising van verschillende wegen en paden hebben we een grote open groene ruimte ontworpen dat het hart van het buurtschap gaat vormen. Ook is er een gebouw met een maatschappe­lijke voorziening bedacht.

Horsterhoeve ligt precies op de overgang tussen twee landschapstypen. Dat hebben we gebruikt als inspiratie voor het stedenbouwkundig plan. In het plan zijn twee deelgebieden ontworpen met een eigen sfeer. De twee sferen komen tot uitdrukking in zowel de inrichting en beplanting van de openbare ruimte als de architectuur van de woningen. Het noordelijke, hoger gelegen deel, ligt op de dekzandrug van Horlo. Het zuidelijke, lager gelegen deel, ligt in wat wij de hooilanden noemen. 

Deelgebied Dekzandrug kenmerkt zich een dorpse architectuur. Je woont aan een rustig straatje of tussen de bomen. Parkeren is zoveel mogelijk voorzien in parkeerclusters waardoor het straatbeeld zoveel mogelijk vrij blijft van geparkeerde auto’s. Deelgebied Hooiland bestaat uit drie compacte erven die omsloten worden met ruim opgezet groen. De woningen hebben een natuurlijke uitstraling en grenzen met hun tuinen aan het omringende groen. 

Bram Nieuwenhuis
Stedenbouwkundige Buro Ontwerp en Omgeving

Het landschappelijk raamwerk is een belangrijke bouwsteen voor het stedenbouwkundig ontwerp. Het landschappelijk raamwerk bestaat uit een groen- en waterstructuur. De groen- en waterstructuur heeft meerdere functies, namelijk voor de woonkwaliteit (zicht op groen en water, recreatieve mogelijkheden), klimaatadaptatie (schaduw, verkoeling, stof beperken, water vasthouden en bergen) en natuurwaarden (natuurinclusiviteit, biodiversiteit). 

Een groot voordeel bij de transformatie van Horsterhoeve naar een woonlandschap is dat er al veel groene kwaliteit aanwezig is. We hebben waardevolle bomen en boomstructuren ingepast in het stedenbouwkundig ontwerp. Volwassen bomen zijn toch een kwaliteit die je nu al hebt waarop je meestal jaren moet wachten! 

De keuzes die gemaakt zijn voor nieuwe bomen en beplantingen sluiten aan bij de landschappelijke identiteit. In deelgebied Dekzandrug werken we met bomen zoals de eik, beuk en noot. Deze bomen passen bij de bestaande boomstructuren en horen bij het drogere landschap van de dekzandrug. De meent, waar plek is voor een natuurspeelplaats, verwijst met zijn inrichting naar het historisch landgebruik met open zandverstuivingen met beplanting zoals droge heide, pijpenstrootje, brem en jeneverbes en wat verspreide bomen zoals de berk of den. In deelgebied Hooiland werken we met beplantingen die passen bij het nattere landschap zoals elzen en berken, zowel solitair staand als in singels. Daarnaast is er ook voorzien in een boomgaard met soorten als kweepeer, kerspruim en mispel. De mix aan beplantingen en bomen dragen bij aan het versterken van de biodiversiteit en natuurinclusiviteit van het plan. 

Horsterhoeve is een woonlandschap waar wij als ontwerpers erg trots op zijn. We kijken uit naar de totstandkoming van het plan en wensen u als mogelijke bewoners veel woonplezier op Horsterhoeve!