Overslaan en naar de inhoud gaan
  • Horsterhoeve
    Update maart 2025
    De verkoop van Horsterhoeve fase 1 is een groot succes, want inmiddels is circa 90% van de overeenkomsten getekend en is er nog slechts één levensloopbestendige twee-onder-een-kapwoning beschikbaar: bouwnummer C.32, met een prijs van €632.500 v.o.n., een kaveloppervlakte van circa 293 m², een woonoppervlakte van circa 115 m², een slaap- en badkamer op de begane grond, uitbreidingsmogelijkheden op…
  • Horsterhoeve
    Verkoop gestart: Horsterhoeve Fase 1 in Ermelo!
    Gisteravond is de verkoop van Horsterhoeve fase 1 feestelijk van start gegaan en de belangstelling was groot. Alle verkoopdocumenten, waaronder brochure, prijslijst en inschrijfformulier, zijn beschikbaar via de projectwebsite en de definitieve prijzen zijn daar ook te vinden. Voor vragen of meer informatie kunt u terecht bij Midden Nederland Makelaars Ermelo (0341 55 37 73) en Randmeer Makelaars…
  • Horsterhoeve
    Donderdag 23 januari 2025: Start verkoop Horsterhoeve!
    De verkoop van Horsterhoeve fase 1 in Ermelo start op donderdag 23 januari 2025. Tijdens de startbijeenkomst bent u welkom tussen 18.30 en 20.30 uur in Verenigingsgebouw Ons Huis, Zeeweg 100 in Ermelo. Daar zijn de makelaars, ontwikkelaar en aannemer aanwezig om vragen te beantwoorden.

    Inschrijven kan vanaf 23 januari tot en met 3 februari 2025 via het inschrijfformulier dat u…
  • Horsterhoeve
    Update december 2024
    De vergunningsaanvraag voor de eerste fase van Horsterhoeve is ingediend bij de gemeente, en de nieuwe rotonde op de Spijkweg is inmiddels gereed. Deze rotonde vormt een veilige en vlotte ontsluiting voor de toekomstige wijk en dient voorlopig ook als toegang voor het bouwverkeer.

    De verkoop van de eerste fase staat nog altijd gepland voor begin 2025. Deze fase omvat 39…
  • Horsterhoeve
    De verkoop van de eerste fase van Horsterhoeve komt in zicht!
    De eerste zichtbare werkzaamheden voor Horsterhoeve zijn gestart. Firma Kamphorst werkt momenteel aan de aanleg van een nieuwe rotonde op de Spijkweg, die een belangrijke ontsluiting vormt voor de wijk. Tegelijkertijd wordt deze maand de vergunningsaanvraag ingediend voor een groot aantal woningen. Na de afronding van de rotonde staat voor deze winter het opschonen van de camping en de verdere…
  • Horsterhoeve
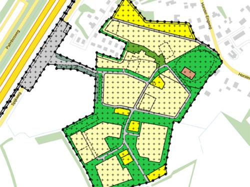
    Bestemmingsplan Horsterhoeve onherroepelijk!
    Het bestemmingsplan voor Horsterhoeve is onherroepelijk geworden, een belangrijke mijlpaal die de weg vrijmaakt voor de verdere ontwikkeling van de nieuwe woonwijk. De definitieve ontwerpen van de eerste fase worden binnenkort afgerond en dit najaar worden de vergunningen ingediend. Tegelijkertijd wordt samen met projectpartners gewerkt aan de inrichting van het openbare gebied, waaronder wegen,…
  • Horsterhoeve
    Bestemmingsplan Horsterhoeve vastgesteld!
    Op 10 juli heeft de gemeenteraad van Ermelo het bestemmingsplan voor Horsterhoeve vastgesteld. Dit is een belangrijke mijlpaal richting de ontwikkeling van een nieuwe woonwijk in Ermelo. Het plan ligt inmiddels zes weken ter inzage. Als er in die periode geen beroep wordt ingediend, wordt het plan onherroepelijk en kan de uitvoering starten. De werkzaamheden beginnen met de aanleg van een nieuwe…
  • Horsterhoeve
    Update Horsterhoeve december 2023
    Het ontwerpbestemmingsplan Horsterhoeve ligt ter inzage en is in te zien via www.ruimtelijkeplannen.nl of bij de gemeente Ermelo. Tijdens de inzagetermijn tot en met 16 januari 2024 organiseert de gemeente op donderdag 11 januari een inloopavond van 19:00 tot 21:00 uur in ‘Ons Huis’ aan de Zeeweg 100 in Ermelo. Bezoekers kunnen daar vragen stellen over het plan. Het project Horsterhoeve voorziet…
  • Horsterhoeve
    Update Horsterhoeve juni 2023
    Met de zomer in het vooruitzicht willen we u graag op de hoogte brengen van de laatste ontwikkelingen bij nieuwbouwplan Horsterhoeve. 

    Op dit moment ligt de focus op het ontwerpbestemmingsplan. Hierin worden de bouwregels en de ruimtelijke inrichting van het gebied vastgelegd, zodat we straks kunnen starten met de daadwerkelijke realisatie van de woningen. Een zorgvuldig proces…
  • Informatieavond
    Informatiebijeenkomst Horsterhoeve 12 december 2022
    Op maandag 12 december 2022 is voor omwonenden en geïnteresseerden van Horsterhoeve een tweede informatieavond georganiseerd. Ook ditmaal heeft de bijeenkomst plaatsgevonden in het nabije Verenigingsgebouw Ons Huis in Ermelo. Op de avond waren de gemeente Ermelo, Buro Ontwerp & Omgeving als stedenbouwkundige en de ontwikkelaar De Bunte Vastgoed Oost aanwezig om de plannen nader toe te lichten.
  • Horsterhoeve
    Update nieuwbouwwijk Horsterhoeve september 2022
    In de afgelopen tijd is achter de schermen hard gewerkt aan het stedenbouwkundig plan voor de ca. 260-270 woningen op de Horsterhoeve. Bovendien zijn in de afgelopen maanden een groot aantal onderzoeken uitgevoerd ten behoeve van de ontwikkeling. U kunt hierbij denken aan onder andere bodem-, geluid- en stikstofonderzoek. In overleg met de gemeente en andere betrokkenen zal het stedenbouwkundig…
  • Horsterhoeve
    Bijeenkomst 19 april 2022
    Dinsdag 19 april 2022 is voor omwonenden van De Horsterhoeve een informatieavond georganiseerd in Verenigingsgebouw Ons Huis in Ermelo. Op deze avond waren de gemeente Ermelo, Buro Ontwerp en Omgeving en De Bunte Vastgoed Oost aanwezig om de plannen nader toe te lichten. De informatieavond is druk bezocht door omwonenden. De plannen zijn toegelicht aan de hand van drie informatiepanelen, die…